東京
都内で
注文住宅
を建てる人が自分の欲しい
間取り
を探せる「東京都内間取り検索」
リバティホーム総合サイトへ
このサイトについて
トップ
東京都内の間取り検索とは
家づくりのはじめの一歩
運営会社情報
間取り検索
コラム
8つの秘策のお申し込み
間取りプラン集お申し込み
お問い合わせ
ホーム
>
間取り一覧
>
間取りプラン73
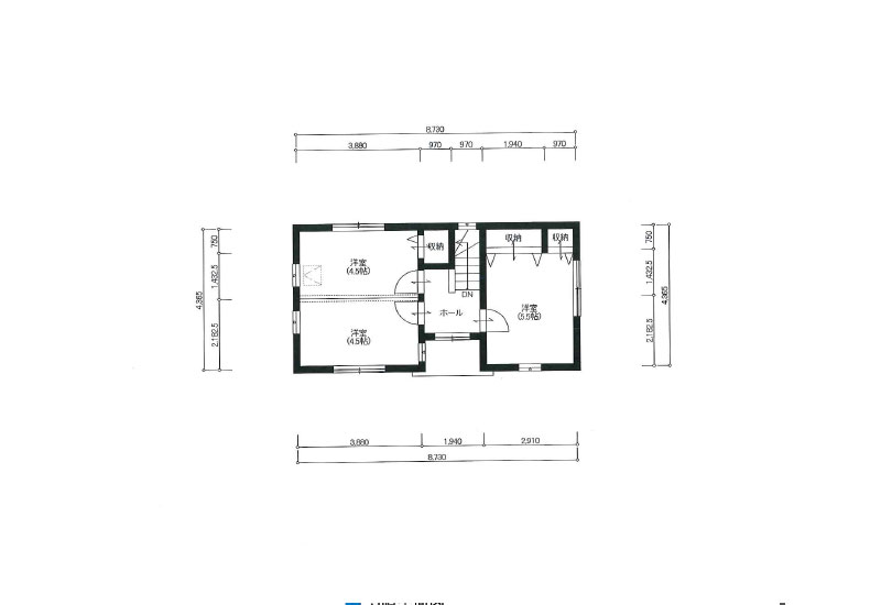
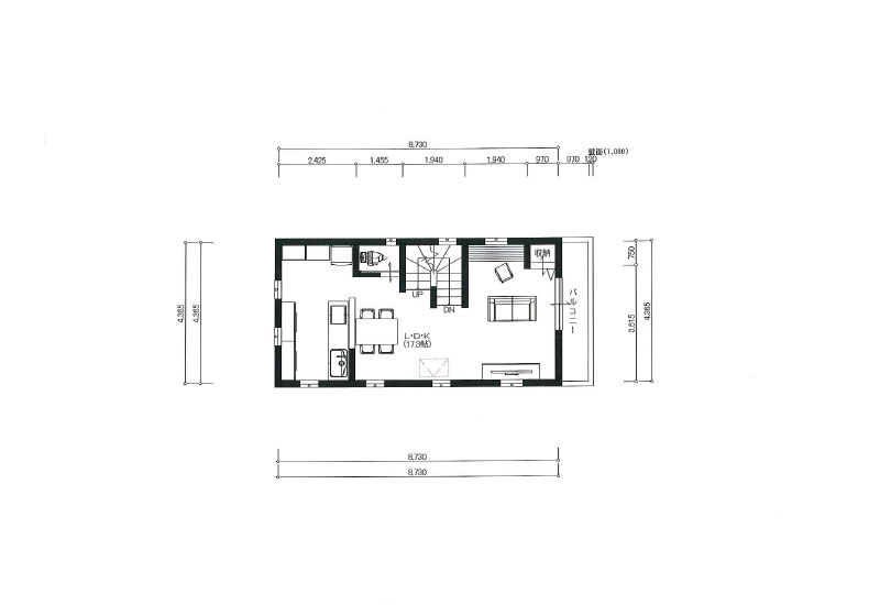
敷地20坪の間取り4LDKの狭小住宅
敷地20坪
4LDK
二階にあがると右にキッチン、左はリビング。家族が集うには十分の広さ
住宅タイプ
狭小住宅 3階建て
間取り
4LDK
延べ床面積
33.47 坪 (110.66 m
2
)
敷地面積
19.76 坪 (65.32 m
2
)
タイプ別で探す
条件別で探す
LDKで探す
2LDK以下
3LDK
4LDK
5LDK以上
敷地面積で探す
10坪未満
10坪以上
15坪以上
20坪以上
25坪以上
他にもこんな間取りがよく見られています
敷地13坪の間取り3LDKの3階建て
敷地22坪の間取り4LDKの狭小住宅
敷地8坪の間取り2LDK以下の狭小住宅
敷地23坪の間取り4LDKの狭小住宅
敷地21坪の間取り2LDK以下の狭小住宅