敷地24坪の間取り4LDKの3階建て
敷地24坪
4LDK
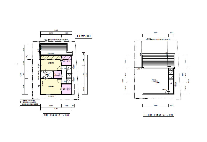
驚きの三か所ウオークインクローゼットに12.5帖の屋上
見どころ!
23.66坪でこれだけ贅沢な4LDKが可能なのか!
これほど実物を見て頂きたい現場はめったにありません。
ウオークインクローゼットが三か所もあり、屋上は12.5帖。
もちろん対面キッチンでリビングは19帖。畳スペースも抑えています。
一階は駐車場もあり、トイレも安心の二ヶ所です。
何が足りないのか?を探す方が難しい家。
| 住宅タイプ | 3階建て |
|---|---|
| 間取り | 4LDK |
| 延べ床面積 | 37.47 坪 (123.88 m2) |
| 敷地面積 | 23.66 坪 (78.21 m2) |













