東京
都内で
注文住宅
を建てる人が自分の欲しい
間取り
を探せる「東京都内間取り検索」
リバティホーム総合サイトへ
このサイトについて
トップ
東京都内の間取り検索とは
家づくりのはじめの一歩
運営会社情報
間取り検索
コラム
8つの秘策のお申し込み
間取りプラン集お申し込み
お問い合わせ
ホーム
>
間取り一覧
>
間取りプラン83
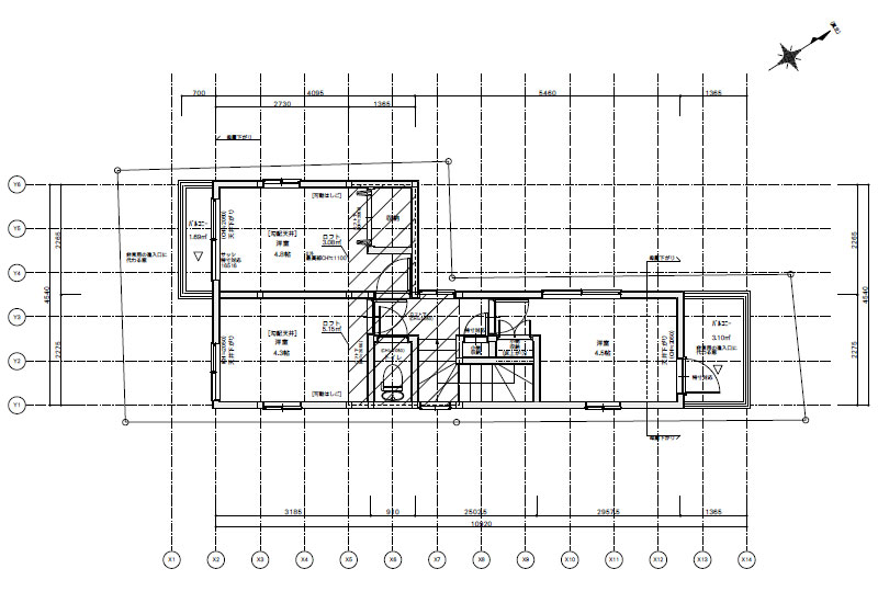
敷地30坪の間取り4LDKの狭小住宅
敷地30坪
4LDK
厳しい変形地でも4LDKを可能にする間取り
住宅タイプ
狭小住宅 3階建て
間取り
4LDK
延べ床面積
17.20 坪 (56.87 m
2
)
敷地面積
29.64 坪 (97.98 m
2
)
タイプ別で探す
条件別で探す
LDKで探す
2LDK以下
3LDK
4LDK
5LDK以上
敷地面積で探す
10坪未満
10坪以上
15坪以上
20坪以上
25坪以上
他にもこんな間取りがよく見られています
敷地13坪の間取り3LDKの3階建て
敷地22坪の間取り4LDKの狭小住宅
敷地8坪の間取り2LDK以下の狭小住宅
敷地23坪の間取り4LDKの狭小住宅
敷地21坪の間取り2LDK以下の狭小住宅